++ IM BAU ++ Exklusive DG-Wohnung am Pfuhler Kapellenberg in ruhiger, eingewachsener Wohnlage
Objektart
Adresse
Objektdaten
Informationen
Ausstattung
Details
++Lukrative Steuervorteile für Kapitalanleger aufgrund QNG-Bauweise++
Über den Dächern Pfuhls! Hier genießen Sie die Ruhe dieses Wohngebiets in einer schicken, clever durchdachten und hellen Dachgeschosswohnung mit Privatsphäre-Loggia.
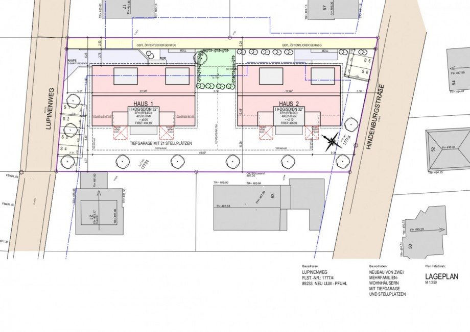
Wohnen in der Traumlage von Pfuhl! Am beliebten Kapellenberg in Neu-Ulm, Pfuhl entsteht gerade dieses attraktive Neubauprojekt "Lupinenweg", bestehend aus 15 Wohnungen, aufgeteilt auf zwei Mehrfamilienhäuser.
Die Gebäude werden nach hohem energetischen Standard in Massivbauweise erbaut.
Beide Mehrparteienhäuser verfügen über drei Etagen, ein Untergeschoss mit verbundener Tiefgarage, Kellerräume, Technikräume und Fahrradräume. Mit einem Personenaufzug gelangen Sie bequem und sicher sowohl auf Ihre Wohnebene, als auch ins Untergeschoss. Für jede Wohnung ist mindestens ein Tiefgaragenstellplatz vorgesehen. Weitere Stellplätze (TG/Außenstellplätze) können je nach Verfügbarkeit dazu erworben werden.
Die Wohnhäuser werden mittels einer zeitgemäßen Speicherwärmepumpe beheizt. Die Wohnungen sind im Badezimmer mit einer Fußbodenheizung ausgestattet.
Die Bauweise sorgt mit hochwertiger Bauausführung und modernen Baumaterialien für geringe Energiekosten und ein sehr angenehmes Wohnraumklima.
*großzügige Loggia mit Rückversatz für maximale Privatsphäre
*Personenaufzug
*Kellerräume und Abstellräume
*KfW 40-Standard
*Speicherwärmepumpe
Präzise und komfortable Regelung der Raumluft
(Heizung, Kühlung, Lüftung) - individuell je Raum
*hauseigene Photovoltaikanlage, betrieben über ein Mieterstrommodell
*dreifach-verglaste Kunststofffenster
*hochwertige Bodenbeläge (nach Auswahl)
*elektrische Jalousien im Wohnbereich, ansonsten elektr. Rollläden
*Video-Türsprechanlage
*Tiefgaragen- u. Außenstellplätze
*uvm.
Dieses Neubauprojekt befindet sich am "Neu-Ulmer Michelsberg", dem sogenannten "Kapellenberg" in Pfuhl.
Der Ort ist mit rund 10.000 Einwohnern seit Jahren "das" umschwärmte Gebiet.
Die stadtnahe Vorortslage mit einer vollständigen Infrastruktur und kurzen Wegen ist Kennzeichen dieses Ortsteils. Lebensmittelgeschäfte, Kindergärten, Schulen, Ärzte, Apotheken uvm. decken den täglichen Bedarf.
Die Ulmer und Neu-Ulmer Innenstädte sind in wenigen Minuten mit dem Auto (ca. 10 Min.) und mit dem Fahrrad (ca. 15 Min.) zu erreichen. Natürlich ist auch ein gut ausgebautes ÖPNV-Netz vorhanden.
Selbstverständlich ist auch an Ihre Freizeit gedacht: Das Pfuhler Ried (praktisch vor der Tür), das Ulmer Naherholungsgebiet Friedrichsau, der Pfuhler Badesee sowie zahlreiche Möglichkeiten zum Joggen, Wandern und Fahrradfahren machen diese Gegend lebenswert. Das Ulmer und Neu-Ulmer Angebot an Bars, Restaurants, Cafés, Kinos etc. lassen garantiert keine Langeweile aufkommen.
Die Gebäude befinden sich bereits in der Ausbauphase.
Voraussichtlicher Bezugstermin: November 2026
Der hier dargestellte Grundriss sowie die Ansichten dienen als Planungsgrundlage. Persönliche Wünsche können ggf. noch berücksichtigt werden.
Hinweis: Angebotsvorbehalt
In diesem Exposé dargestellte Einrichtungsgegenstände, Illustrationen, Computergrafiken sowie die in den Grundrissplänen dargestellte Möblierung, Küchen und Ausstattungen in den Abbildungen haben nur beispielhaften Charakter und sind kein Vertragsgegenstand.
Maßgeblich sind ausschließlich die Baubeschreibung und der notarielle Kaufvertrag.
Alle Angaben erfolgen nach besten Wissen und Gewissen. Druckfehler, Irrtümer sowie Änderungen in Planung und Ausführung bleiben vorbehalten. Für Richtigkeit und Vollständigkeit wird keine Haftung übernommen.
Grundrisse und Visualisierungen sind nicht zur Maßentnahme geeignet.
Haben Sie weitere Fragen? Gerne erörtern wir alle weiteren Details im persönlichen Gespräch. Viele weitere Immobilienangebote erhalten Sie auf www.goettfried-immobilien.de. Wir stehen Ihnen auch gerne bei Verkauf, Vermietung oder Verwaltung bestehender Immobilien zur Verfügung. Sprechen Sie mit uns!
Ansprechpartner
Mobil: 0160 966 18708
goettfried@goettfried-immobilien.de
Ich bin damit einverstanden, dass mir Karten von Google angezeigt werden. Es gelten die Datenschutzbedingungen von Google (https://policies.google.com/privacy).
Ich bin einverstanden