Charmante Dachgeschosswohnung mit Südbalkon in begehrter Lage von Pfuhl
Objektart
Adresse
Objektdaten
Informationen
Ausstattung
Details
In begehrter Wohnlage im Neu-Ulmer Stadtteil Pfuhl befindet sich diese charmante und äußerst gemütliche 3-Zimmer-Dachgeschosswohnung in einem gepflegten Mehrfamilienhaus aus dem Baujahr 2001. Das Gebäude umfasst insgesamt 11 Wohnungen sowie eine Tiefgarage und befindet sich ebenso wie die angebotene Wohnung in einem sehr guten und gepflegten Zustand. Aktuell wird die Tiefgarage umfassend saniert.
Die Wohnung liegt im 3. Obergeschoss - dem obersten Geschoss des Hauses. Ein Aufzug ist nicht vorhanden. Dafür genießen Sie hier eine besonders ruhige und private Wohnatmosphäre.
Ein besonderes Highlight der Wohnung ist der großzügige Südbalkon mit einer Fläche von ca. 7,32 m². Als höchstgelegener Balkon im Gebäude bietet er ein hohes Maß an Privatsphäre sowie einen schönen Blick über die Dächer von Pfuhl. Dank der idealen Ausrichtung können Sie hier von den Morgenstunden bis in den Abend hinein die Sonne genießen.
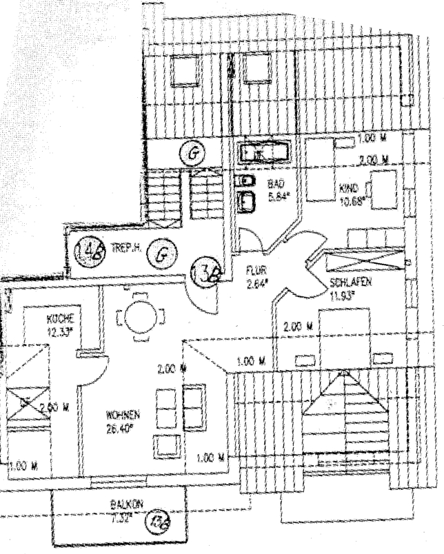
Der Grundriss der Wohnung wird durch zahlreiche Dachschrägen geprägt, die dem Wohnraum eine besonders behagliche und stilvolle Atmosphäre verleihen. Laut Plan (mit ausgewiesenen Flächenangaben und eingezeichneter 1-Meter-Höhenlinie) ergibt sich die offizielle Wohnflächenberechnung, während die tatsächliche Bodenfläche der Wohnung deutlich über 80 m² liegt und somit zusätzlichen Raumkomfort bietet.
Die Ausstattung ist harmonisch und zeitlos gewählt: In allen Wohnräumen - mit Ausnahme des Badezimmers - wurde stilvolles Bucheparkett verlegt, das eine warme Wohnatmosphäre schafft. Das Badezimmer ist gefliest. Für hohen Wohnkomfort sorgt die Fußbodenheizung mit Einzelraumsteuerung.
Eine zeitlose Einbauküche mit teilweise Markengeräten ist bereits vorhanden und im Kaufpreis enthalten.
Zusätzlichen Stauraum bietet ein zur Wohnung gehörendes Kellerabteil mit einer Größe von ca. 5 m².
Die Wohnung ist seit dem Jahr 2021 zuverlässig vermietet und stellt damit auch eine interessante Gelegenheit für Kapitalanleger dar.Diese Dachgeschosswohnung verbindet eine attraktive Lage, viel Charme durch die Dacharchitektur sowie einen sonnigen Balkon mit hohem Maß an Privatsphäre - eine seltene Gelegenheit im beliebten Neu-Ulmer Stadtteil Pfuhl.
- Parkettböden in sämtlichen Räumen außer Bad und Küche
- Fußbodenheizung mit Einzelraumsteuerung
- Dachflächenfenster mit Sonnenbeschattung
- Einbauküche mit teilweise Markengeräten
- höchster Wohnbalkon in der Wohnanlage, somit viel Privatsphäre
- 1 TG-Stellplatz + 1 Kellerraum
Der Neu-Ulmer Stadtteil "Pfuhl" ist mit rund 10.000 Einwohnern seit Jahren "eines" der umschwärmtesten Wohngebiet in der Region. Die Stadtnahe Vorortslage mit einer vollständigen Infrastruktur und kurzen Wegen ist Kennzeichen dieses Ortsteils. Lebensmittelgeschäfte, Kindergärten, Schulen, Ärzte, Apotheken uvm. decken den täglichen Bedarf.
Die Ulmer und Neu-Ulmer Innenstädte sind in wenigen Minuten mit dem Auto (ca. 10 Min.) und mit dem Fahrrad (ca. 15 Min.) zu erreichen. Natürlich ist auch ein gut ausgebautes ÖPNV-Netz vorhanden.
Selbstverständlich ist auch an Ihre Freizeit gedacht: Das Ulmer Naherholungsgebiet Friedrichsau, der Pfuhler Badesee sowie zahlreiche Möglichkeiten zum Joggen, Wandern und Fahrradfahren machen diese Gegend lebenswert. Das Ulmer und Neu-Ulmer Angebot an Bars, Restaurants, Cafés, Kinos etc. lassen garantiert keine Langeweile aufkommen.
Die Wohnung ist seit 2021 vermietet. Eine Mieterhöhung wurde seit dem noch nicht durchgeführt. Der Kaufpreis setzt sich wie folgt zusammen:
Wohnung: 279.500 EUR
1x TG-Stellplatz: 19.500 EUR
______________________________
GESAMT: 299.000 EUR
Wichtiger Hinweis:
Ohne die vollständige Bestätigung der Widerrufsbelehrung (alle fünf Checkboxen) werden wir Sie nicht vor Ablauf der 14-tägigen Widerrufsfrist zu einer Besichtigung einladen oder weiterführende Objektunterlagen zur Verfügung stellen.
Bitte beachten Sie, dass eine Besichtigung erst nach Bestätigung möglich ist.
Die Käuferprovision wird ausschließlich im Falle eines notariell beurkundeten Kaufvertrags fällig.
Haben Sie weitere Fragen? Gerne erörtern wir alle weiteren Details im persönlichen Gespräch. Viele weitere Immobilienangebote erhalten Sie auf www.goettfried-immobilien.de. Wir stehen Ihnen auch gerne bei Verkauf, Vermietung oder Verwaltung bestehender Immobilien zur Verfügung. Sprechen Sie mit uns! Heißer Tipp: Unsere Facebook-Freunde erfahren als Erste von brandaktuellen Immobilien-Neuzugängen, Aktionen und Events. Liken Sie unsere Seite auf Facebook und verschaffen Sie sich den entscheidenden Zeitvorteil! https://www.facebook.com/GoettfriedImmobilien
Gerne können Sie uns auch auf Instagram unter "goettfried.immo" besuchen.
Ansprechpartner
Mobil: 0160 966 18708
goettfried@goettfried-immobilien.de
Energieausweis (Verbrauchsausweis)
91,90 kWh / (m²*a) Energieverbrauchskennwert
91,90 kWh / (m²*a) Energieverbrauchskennwert
91,90 kWh / (m²*a) Energieverbrauchskennwert
Weitere Informationen
| Wesentlicher Energieträger | Gas |
| Energieausweis Ausstelldatum | 2020-03-17 |
| Energieausweis gültig bis | 16.03.2030 |
| Energieausweis Jahrgang | ab dem 1.5.2014 |
| Energieverbrauch für Warmwasser | enthalten |
| Energieausweis Werteklasse | C |
| Energieausweis Baujahr | 2001 |
| Energieausweis Gebäudeart | Wohngebäude |
| Heizung | Zentralheizung |
| Befeuerung | Gas |
Ich bin damit einverstanden, dass mir Karten von Google angezeigt werden. Es gelten die Datenschutzbedingungen von Google (https://policies.google.com/privacy).
Ich bin einverstanden